Description
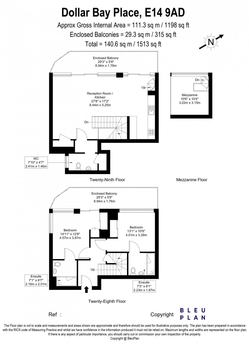
- TWO BEDROOMS
- TWO BATHROOMS
- UPSTAIRS W/C
- RIVER VIEWS
- 24HR CONCIERGE
- GYM & RESIDENCE LOUNGE
- LIFT ACCESS
- PENTHOUSE APARTMENT
- 28TH FLOOR
LONG LET. A STUNNING TWO BEDROOM PENTHOUSE TRIPLEX APARTMENT positioned within the superb Dollar Bay development, boasting a superb Canary Wharf location on the edge of the South Quay Dock, ensuring stunning views from the winter garden.
LONG LET. A STUNNING TWO BEDROOM PENTHOUSE TRIPLEX APARTMENT positioned within the superb Dollar Bay development, boasting a superb Canary Wharf location on the edge of the South Quay Dock, ensuring stunning views from the winter garden.
Location: Dollar Bay development is well served by the many shops, restaurants and dock-side bars of Canary Wharf and West India Quay, as well as being moments from the Thames and nearby docks. For transport links the DLR and Jubilee lines can be found within Canary Wharf.
Term: Long term
Local Authority: Tower Hamlets
EPC rating: B
Council Tax Band: H
Furnishings: Furnished
Total Sq Ft: Approx. 1550 Sq. ft
Available: NOW
Floorplan
To discuss this property:
Market your property
with Ashley King
Book a market appraisal for your property today. Our virtual options are still available if you prefer.
